CHALET, GITE DE GROUPE - ATC ROUTES DU MONDE à BUSSANG - 32 couchages - Bussang
Venez découvrir la magie de la France ! Séjournez dans un gîte pittoresque, un château romantique ou un hôtel charmant. Admirez des panoramas à couper le souffle, explorez des villages authentiques, goûtez une cuisine locale raffinée et vivez des aventures uniques. Entre montagnes, plages et patrimoine historique, chaque instant devient inoubliable. Que vous soyez amateur de culture, de détente ou de nature, ce coin de France a tout pour plaire.
CHALET, GITE DE GROUPE - ATC ROUTES DU MONDE à BUSSANG - 32 couchages
Bussang Route des Champs Colnots
Parking
Langues parlées
FR
8.2/10
Parking
Langues parlées
FR
8.2/10
Offrant une vue sur la montagne, l’hébergement CHALET, GITE DE GROUPE - ATC ROUTES DU MONDE à BUSSANG - 32 couchages vous accueille à Bussang, à respectivement 42 km et 49 km de ces lieux d’intérêt : Gare de Belfort et Gare de Mulhouse. Cet hébergement est installé à 41 km de : Lac de Gérardmer. Il comprend une terrasse et un parking privé gratuit.
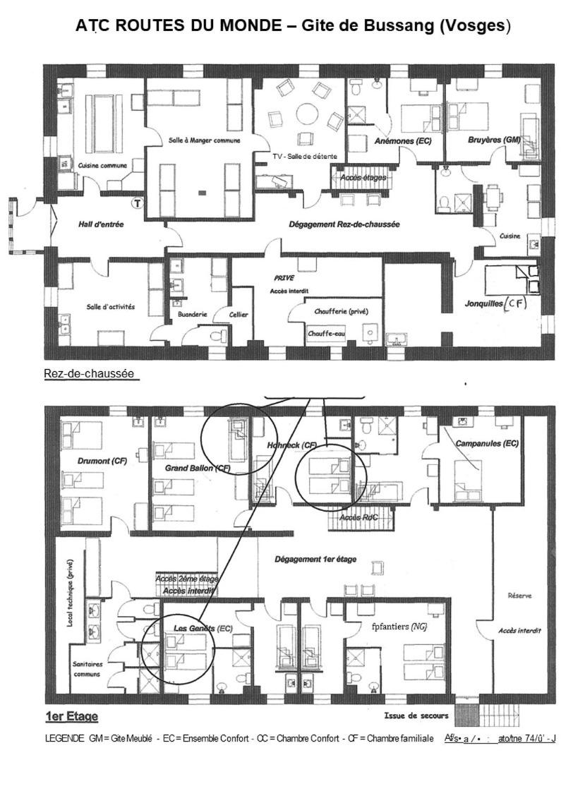
Ce chalet se compose de 7 chambres séparées, dun salon, dune cuisine entièrement équipée, et de 5 salles de bains.
Vous séjournerez à 45 km de ce lieu d’intérêt : Lac de Longemer. Laéroport le plus proche (EuroAirport Mulhouse) est à 74 km.
Arrivée à partir de 16:00 et se termine à 12:00.
Veuillez informer létablissement à lavance de lheure à laquelle vous prévoyez darriver. Vous pouvez indiquer cette information dans la rubrique « Demandes spéciales » lors de la réservation ou contacter directement létablissement. Ses coordonnées figurent sur votre confirmation de réservation.
Chalet. Doté d’une terrasse propice à la détente, ce chalet spacieux comprend 7 chambres, 5 salles de bains et un salon. Vous pourrez conserver vos aliments et préparer vos repas dans la cuisine du chalet. Offrant une vue sur le jardin, le chalet dispose d’un lave-linge et du chauffage. Ce logement comporte 15 lits.
Parking
Établissement entièrement non-fumeurs
Parking gratuit
Parking privé
Parking sur place
Terrasse
